Luz natural, entorno verde y una remodelación pensada para vivir bien
Ubicado en un barrio que invita a caminar, rodeado de plazas, ciclovías y conectividad, este departamento en venta en Providencia destaca por su amplitud, distribución funcional y una remodelación completa realizada el año 2017. Ideal para familias o quienes valoran espacios bien aprovechados, este departamento ofrece una experiencia de vida cómoda, luminosa y conectada con el entorno.
El departamento se encuentra en un edificio de los años 60, lo que se traduce en sólidos muros y ambientes amplios. A esto se suma una actualización integral que incluye calefacción central por radiadores con caldera propia, baños renovados con iluminación natural, aire acondicionado en el living-comedor y terminaciones en materiales nobles como pisos de parquet.
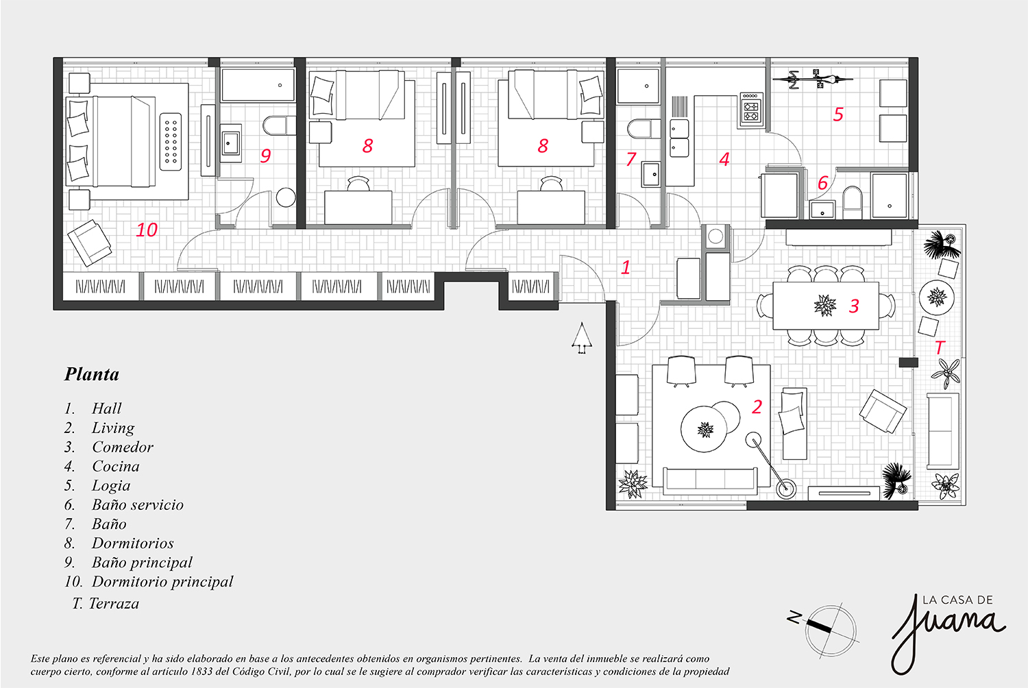
La distribución está pensada para una convivencia armónica: dormitorios orientados al oriente para aprovechar el sol de la mañana, living-comedor con orientación sur y vista verde hacia la copa de los árboles, y una logia cerrada de buen tamaño, perfecta para quienes buscan funcionalidad sin perder estilo.
Vivir aquí significa disfrutar de un entorno privilegiado, con múltiples áreas verdes como el Parque Inés de Suárez y plazas cercanas como La Alcaldesa o Pedro de Valdivia. Además, está a solo 13 minutos caminando del Metro Inés de Suárez (L6) y a 15 minutos de Pedro
…Luz natural, entorno verde y una remodelación pensada para vivir bien
Ubicado en un barrio que invita a caminar, rodeado de plazas, ciclovías y conectividad, este departamento en venta en Providencia destaca por su amplitud, distribución funcional y una remodelación completa realizada el año 2017. Ideal para familias o quienes valoran espacios bien aprovechados, este departamento ofrece una experiencia de vida cómoda, luminosa y conectada con el entorno.
El departamento se encuentra en un edificio de los años 60, lo que se traduce en sólidos muros y ambientes amplios. A esto se suma una actualización integral que incluye calefacción central por radiadores con caldera propia, baños renovados con iluminación natural, aire acondicionado en el living-comedor y terminaciones en materiales nobles como pisos de parquet.
La distribución está pensada para una convivencia armónica: dormitorios orientados al oriente para aprovechar el sol de la mañana, living-comedor con orientación sur y vista verde hacia la copa de los árboles, y una logia cerrada de buen tamaño, perfecta para quienes buscan funcionalidad sin perder estilo.
Vivir aquí significa disfrutar de un entorno privilegiado, con múltiples áreas verdes como el Parque Inés de Suárez y plazas cercanas como La Alcaldesa o Pedro de Valdivia. Además, está a solo 13 minutos caminando del Metro Inés de Suárez (L6) y a 15 minutos de Pedro de Valdivia (L1), lo que facilita el desplazamiento tanto en transporte público como en bicicleta, gracias a las ciclovías de Lyon y Eliodoro Yáñez.
Este departamento en venta en Providencia no solo es una vivienda, es una invitación a habitar con calidad de vida, rodeado de espacios verdes, con excelente conectividad y en un edificio que ofrece lo mejor de dos mundos: estructura sólida y renovación moderna.
¡Agenda tu visita y descubre por qué este puede ser tu próximo hogar en Providencia!
Características Principales
- Año de Construcción: 1962
- Orientación: SO
- Piso del Departamento: 3
- Cantidad de pisos en el edificio: 3
- Remodelación más reciente: Baños, Cocina, Ventanas, Sistema eléctrico, Climatización
¿Te gustaría conocer esta propiedad? Agenda tu visita y uno de nuestros embajadores te contactará para un recorrido.
Equipamiento y Terminaciones
- Climatización: Calefacción central por radiadores,Aire acondicionado
- Equipo de Agua Caliente: Caldera Propia
- Ventanas y tipo de marco: Termopaneles con marcos de PVC
- Terminaciones de piso: Parquet,Porcelanato
- Cubierta de la cocina: Cuarzo
- Tipo caldera: Propia
Equipamiento de la Comunidad: Conserjería por turno
“Aunque pueden existir pequeñas variaciones respecto a mediciones en sitio, las superficies indicadas han sido revisadas por personal técnico de LCDJ y se corresponden con los antecedentes recabados en los organismos pertinentes»
