Espacios amplios, luz natural y vida de barrio en Barrio Escandinavia
Este departamento en venta en Las Condes destaca por su equilibrio entre amplitud, funcionalidad y una vista abierta que potencia la sensación de bienestar en cada espacio. Ubicado en el consolidado Barrio Escandinavia, es una excelente oportunidad para quienes buscan un hogar con proyección, buena conectividad y calidad constructiva.
El entorno combina vida de barrio con cercanía a todo lo necesario: a pasos de Av. Manquehue y Apoquindo, con acceso a transporte público, metro, comercio y servicios. A pocas cuadras encontrarás el centro comercial Apumanque, cafés, restaurantes y áreas verdes, además de una variada oferta educacional. Todo esto permite una vida práctica, caminable y bien conectada.
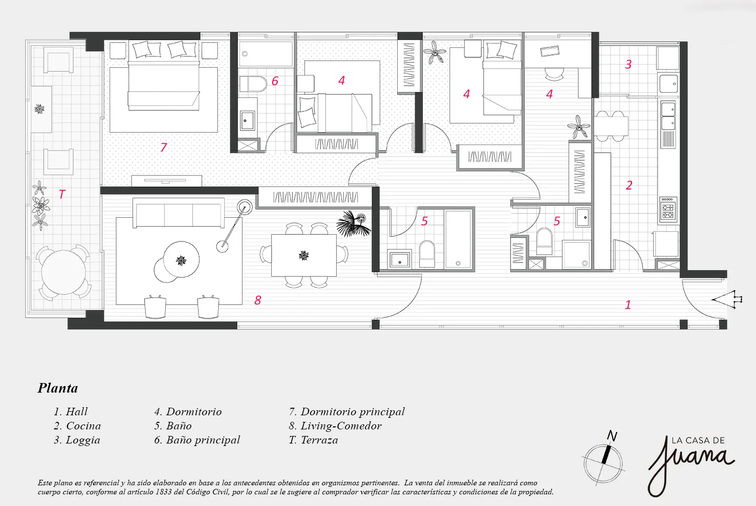
La propiedad ofrece una distribución pensada para la vida familiar, donde el living comedor se abre hacia una amplia terraza, generando continuidad espacial y aprovechando la orientación sur que, junto a sus grandes ventanales, entrega una iluminación natural constante y agradable. La cocina integrada se conecta de manera fluida, aportando modernidad y funcionalidad al espacio social.
La zona privada mantiene independencia entre el dormitorio principal y los secundarios, favoreciendo la privacidad y una mejor convivencia. Sus espacios amplios permiten adaptarse a distintas etapas familiares, ya sea para hijos, home
…Espacios amplios, luz natural y vida de barrio en Barrio Escandinavia
Este departamento en venta en Las Condes destaca por su equilibrio entre amplitud, funcionalidad y una vista abierta que potencia la sensación de bienestar en cada espacio. Ubicado en el consolidado Barrio Escandinavia, es una excelente oportunidad para quienes buscan un hogar con proyección, buena conectividad y calidad constructiva.
El entorno combina vida de barrio con cercanía a todo lo necesario: a pasos de Av. Manquehue y Apoquindo, con acceso a transporte público, metro, comercio y servicios. A pocas cuadras encontrarás el centro comercial Apumanque, cafés, restaurantes y áreas verdes, además de una variada oferta educacional. Todo esto permite una vida práctica, caminable y bien conectada.
La propiedad ofrece una distribución pensada para la vida familiar, donde el living comedor se abre hacia una amplia terraza, generando continuidad espacial y aprovechando la orientación sur que, junto a sus grandes ventanales, entrega una iluminación natural constante y agradable. La cocina integrada se conecta de manera fluida, aportando modernidad y funcionalidad al espacio social.
La zona privada mantiene independencia entre el dormitorio principal y los secundarios, favoreciendo la privacidad y una mejor convivencia. Sus espacios amplios permiten adaptarse a distintas etapas familiares, ya sea para hijos, home office o una sala de estar adicional.
El conjunto destaca por su buen estándar y cuidado general, lo que se refleja en sus espacios comunes y en la experiencia de habitar un entorno ordenado y bien gestionado. Además, su ubicación estratégica dentro de Las Condes asegura una alta demanda sostenida en el tiempo.
Este departamento es ideal para quienes valoran vivir en un barrio activo, con servicios a escala peatonal y espacios interiores que realmente acompañan la vida diaria.
¡Agenda tu visita y ven a descubrir tu próximo hogar!
Características Principales
- Año de Construcción: 2014
- Orientación: S
- Piso del Departamento: 6
- Cantidad de pisos en el edificio: 12
- Colegios y Universidades: Colegio Internacional SEK Chile – Colegio Nuestra Señora del Rosario – Colegio Compañía de Maria Apoquindo
¿Te gustaría conocer esta propiedad? Agenda tu visita y uno de nuestros embajadores te contactará para un recorrido.
Equipamiento y Terminaciones
- Climatización: Calefacción central por losa radiante
- Equipo de Agua Caliente: Caldera de La comunidad
- Ventanas y tipo de marco: Termopaneles con marcos de aluminio
- Terminaciones de piso: Flotante
- Cubierta de la cocina: Granito
- Tipo caldera: De la Comunidad
Equipamiento de la Comunidad: Piscina, Gimnasio, Quincho, Sala de eventos
“Aunque pueden existir pequeñas variaciones respecto a mediciones en sitio, las superficies indicadas han sido revisadas por personal técnico de LCDJ y se corresponden con los antecedentes recabados en los organismos pertinentes"
